Il sito individuato si trova in viale dei Picciotti, e il progetto prevede 25 postazioni per il conferimento di vari materiali. Ieri sono scaduti i termini per la presentazione delle domande. L’obiettivo è aumentare la raccolta differenziata attraverso l'incentivo di uno sconto sulla Tari in proporzione ai conferimenti
Il Comune pensa a una super isola ecologica Impianto dovrebbe sorgere in area confiscata
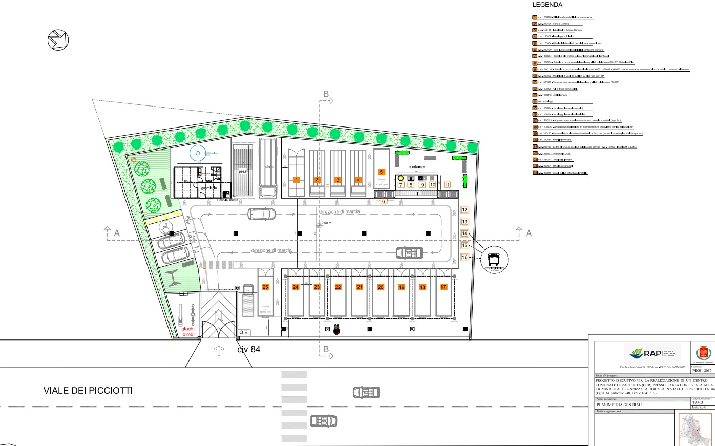
Il Comune vuole realizzare un Centro di raccolta (Ccr) per il conferimento di tutti i tipi i rifiuti, differenziabili e non. Si tratta sostanzialmente di un’isola ecologica, che nelle intenzioni dell’amministrazione (sulla scia di esempi attuati da molto tempo in altre realtà locali) dovrebbe consentire a famiglie e imprese di ridurre il peso della propria Tari (fino al 30% in meno, come recita il regolamento comunale) attraverso il conferimento di vari materiali in questo deposito. E di conseguenza ciò farebbe aumentare la percentuale di differenziazione dei rifiuti, come più volte indicato dal Governo nazionale.
L’operazione verrebbe finanziata attraverso un avviso pubblico della Regione che destina circa 25,5 milioni di euro di somme nazionali del Fondo sviluppo e coesione che il Cipe nel 2012 ha destinato alla Sicilia e che non sono ancora stati spesi. Nello specifico, la Regione contribuirà versando ad ogni soggetto pubblico promotore (comuni o Società per la regolamentazione del servizio di gestione rifiuti) fino ad 800mila euro per la realizzazione di ogni Ccr, con l’obbligo di realizzare le opere entro il 31 dicembre 2018, pena la decadenza del contributo.
Ieri sono scaduti i termini per la presentazione delle domande, e martedì la giunta comunale ha licenziato il progetto esecutivo predisposto dalla Rap. L’area prescelta è un terreno in viale dei Picciotti n°84 (all’altezza di via Antonio Saetta), un bene confiscato alla mafia acquisito al patrimonio del Comune, che negli anni scorsi è stato utilizzato dalla Sis come deposito di stoccaggio durante la costruzione della linea 1 del tram. Nei circa 1700 metri quadrati di estensione (che verrebbero concessi in comodato d’uso alla Rap, la quale gestirà materialmente l’impianto una volta realizzato), verranno realizzati una serie di scompartimenti, all’interno di ognuno dei quali verranno posizionati dei contenitori o degli scarrabili per il conferimento di 25 diversi tipi di materiale, dai più semplici – come carta, plastica o rifiuti organici – fino a batterie con piombo, medicinali, sfabbricidi, imballaggi metallici, pneumatici, apparecchiature elettroniche, olii esausti, toner. Tutto il materiale raccolto sarà poi inviato periodicamente (ogni 2 mesi, tranne l’organico che verrà ritirato ogni 3 giorni) agli impianti di recupero appartenenti a vari consorzi nazionali come il Conai o il Corepla.
L’elemento maggiormente qualificante del progetto (nel quale è inserito anche un piccolo spazio giochi per bambini) è il sistema informatico di gestione del conferimento, composto da lettori per il riconoscimento dell’utente, bilance pesacarrelli ed emettitrici di scontriniricevute. Per realizzare l’impianto sono previsti 196 giorni di cantiere per un importo di circa 950mila euro (150mila sono già a disposizione di Palazzo delle Aquile), che comprendono la definizione degli spazi e la collocazione di zona uffici, servizi igienici e pesa interrata, la copertura della zona stoccaggio per i rifiuti RAEE, la sistemazione delle varie sottoreti, la realizzazione di un sistema antincendio e di sicurezza, e l’automazione degli accessi e del conferimento.
«L’impianto – spiega l’assessore comunale all’Igiene e sanità Sergio Marino – è urgente, quindi spero che la Regione si adoperi in tempi brevi per esaminare le domande. Il miglioramento della percentuale della differenziata dipenderà dalla risposta dei cittadini, comunque faremo una adeguata campagna di comunicazione e sono fiducioso che il Ccr verrà usato fin dal primo momento utile dai cittadini più sensibili al tema rifiuti. Inoltre immagino che, nell’ottica di meccanismi compensativi da stabilire in seguito, alcune persone meno fortunate potrebbero fare raccolta di materiale sparso per strada contribuendo a pulire un po’ di più la città».
